Sprzedane
Bytom, śląskie, Polska



















Rezerwacja
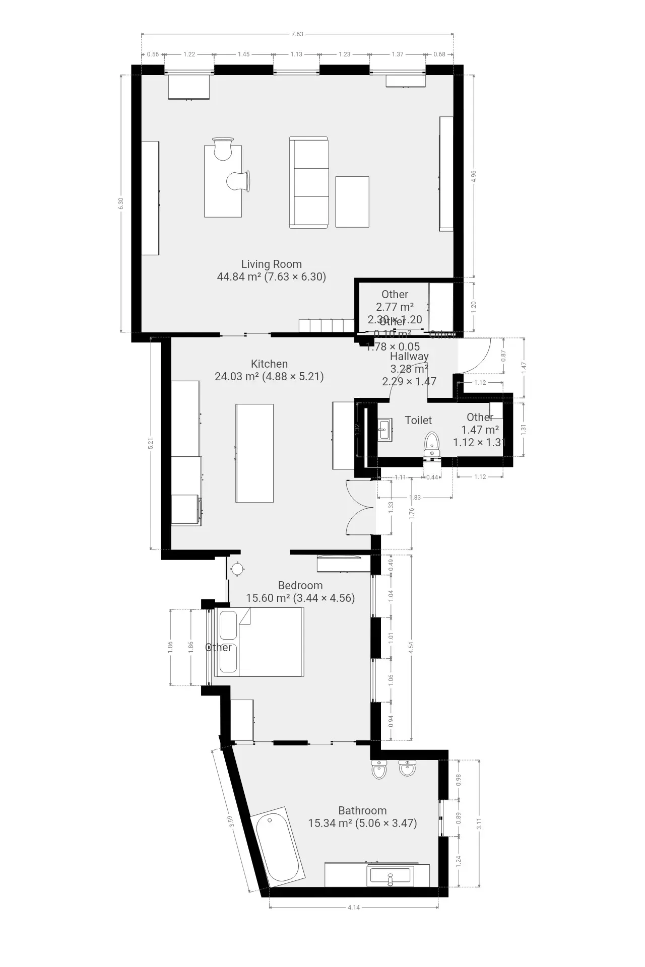
Mieszkanie na sprzedaż, cena 445000 PLN, 3973 PLN/m2, powierzchnia 112 m2Bytom, śląskie, Polska



















Rezerwacja
Na sprzedaż: Luksusowe 4-pokojowe mieszkanie z tarasem – Centrum Bytomia, minuta do Agory
Biuro Wisto Nieruchomości – Biuro Godne Polecenia prezentuje wyjątkową ofertę sprzedaży przestronnego, 4-pokojowego mieszkania położonego w eleganckiej, zadbanej kamienicy w samym sercu Bytomia – zaledwie minutę spacerem od Galerii Agora.
Opis nieruchomości:
Mieszkanie po generalnym remoncie, wykończone w standardzie premium – wszystko nowe, zaprojektowane z gustem i funkcjonalnością.
-Powierzchnia użytkowa: 112m2
-4 przestronne, niezależne pokoje – idealne dla rodziny, pary lub pod inwestycję
-W pełni wyposażona kuchnia z nowoczesnym sprzętem AGD
-Pokój kąpielowy z dużą wanną i nowoczesną armaturą – idealny do relaksu
-Oddzielne WC – wygoda dla domowników i gości
-Zabudowane szafy – dużo miejsca do przechowywania, bez zabierania przestrzeni
Wysokie sufity, stylowe drzwi i nowoczesne oświetlenie
Atuty mieszkania i lokalizacji:
-Ogromny taras – idealny na poranną kawę, wieczorne wino lub grilla z rodziną
-Centrum miasta – doskonała lokalizacja:
-1 minuta pieszo do Galerii Agora
-W sąsiedztwie sklepy, restauracje, kino, szkoły, urzędy
-Świetna komunikacja z całym regionem – tramwaje, autobusy, łatwy dojazd do Katowic
-Zadbana klatka schodowa i spokojne sąsiedztwo
-To mieszkanie to połączenie komfortu, klasy i doskonałej lokalizacji. Idealna propozycja dla osób ceniących miejski styl życia bez kompromisów w kwestii wygody.
Zadzwoń: 502 129 400
Umów się na prezentację i zakochaj się w tej nieruchomości.
Wisto Nieruchomości – Klienci polecają. My działamy. Ty zyskujesz.
Na sprzedaż: Luksusowe 4-pokojowe mieszkanie z tarasem – Centrum Bytomia, minuta do Agory
Biuro Wisto Nieruchomości – Biuro Godne Polecenia prezentuje wyjątkową ofertę sprzedaży przestronnego, 4-pokojowego mieszkania położonego w eleganckiej, zadbanej kamienicy w samym sercu Bytomia – zaledwie minutę spacerem od Galerii Agora.
Opis nieruchomości:
Mieszkanie po generalnym remoncie, wykończone w standardzie premium – wszystko nowe, zaprojektowane z gustem i funkcjonalnością.
-Powierzchnia użytkowa: 112m2
-4 przestronne, niezależne pokoje – idealne dla rodziny, pary lub pod inwestycję
-W pełni wyposażona kuchnia z nowoczesnym sprzętem AGD
-Pokój kąpielowy z dużą wanną i nowoczesną armaturą – idealny do relaksu
-Oddzielne WC – wygoda dla domowników i gości
-Zabudowane szafy – dużo miejsca do przechowywania, bez zabierania przestrzeni
Wysokie sufity, stylowe drzwi i nowoczesne oświetlenie
Atuty mieszkania i lokalizacji:
-Ogromny taras – idealny na poranną kawę, wieczorne wino lub grilla z rodziną
-Centrum miasta – doskonała lokalizacja:
-1 minuta pieszo do Galerii Agora
-W sąsiedztwie sklepy, restauracje, kino, szkoły, urzędy
-Świetna komunikacja z całym regionem – tramwaje, autobusy, łatwy dojazd do Katowic
-Zadbana klatka schodowa i spokojne sąsiedztwo
-To mieszkanie to połączenie komfortu, klasy i doskonałej lokalizacji. Idealna propozycja dla osób ceniących miejski styl życia bez kompromisów w kwestii wygody.
Zadzwoń: 502 129 400
Umów się na prezentację i zakochaj się w tej nieruchomości.
Wisto Nieruchomości – Klienci polecają. My działamy. Ty zyskujesz.
| Informacje podstawowe | ||
|---|---|---|
| Rodzaj nieruchomości | Mieszkanie | |
| Rodzaj transakcji | Sprzedaż | |
| Rynek | Wtórny | |
| Województwo | śląskie | |
| Miejscowość | Bytom | |
| Prąd (przyłącze) | Tak | |
| Gaz (przyłącze) | Tak | |
| Kanalizacja | Tak | |
| Parking | Nie | |
| Rodzaj budynku | Kamienica | |
| Rok budowy | 1965 | |
| Informacje dodatkowe | ||
|---|---|---|
| Piętro | 3 | |
| Liczba pięter | 4 | |
| Liczba pokoi | 4 | |
| Stan obiektu | Po remoncie | |
| Rodzaj kuchni | Oddzielna | |
| Materiał | Cegła | |
| Technologia | Tradycyjna | |
| Ogrzewanie | Gazowe | |
| Dostępność | Do uzgodnienia | |
| Taras | Tak | |
| Piwnica | Tak | |
| Otoczenie | ||
|---|---|---|
| Otoczenie | Osiedle bloków mieszkalnych | |
| Bank | Tak | |
| Restauracja | Tak | |
| Bar / pub | Tak | |
| Szkoła podstawowa | Tak | |
| Liceum / Technikum | Tak | |
| Uczelnia | Tak | |
| Żłobek | Tak | |
| Przedszkole | Tak | |
| Basen | Tak | |
| Fitnes | Tak | |
| Pralnia | Tak | |
| Apteka | Tak | |
| Fryzjer | Tak | |
| Supermarket | Tak | |
| Sklep spożywczy | Tak | |
| Weterynarz | Tak | |
Kontakt:
Sławomir Szimpel
Tel.: 502 129 400
Nr ref.: O-355
Sławomir Szimpel
Tel.: 502 129 400
Nr ref.: O-355
