Sprzedane
Bytom, śląskie, Polska













Do własnej adaptacji Możliwe 4 pokoje Okazja
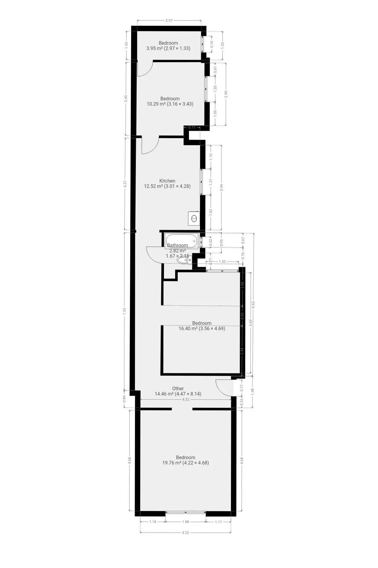
Mieszkanie na sprzedaż, cena 181200 PLN, 2237 PLN/m2, powierzchnia 81 m2Bytom, śląskie, Polska













Ogłoszenie sprzedaży mieszkania
Sprzedaje: Wisto Nieruchomości – biuro godne polecenia!
Na sprzedaż wyjątkowe 4-pokojowe mieszkanie w samym centrum Bytomia. Lokal o powierzchni 80,75 m², wymagający generalnego remontu, co daje niepowtarzalną możliwość aranżacji według własnego gustu. I co dodatkowo zwiększa potencjał mieszkania.
Szczegóły nieruchomości:
- Lokalizacja: Centrum Bytomia
- Powierzchnia mieszkania: 80,75 m²
- Dodatkowo: Piwnica o powierzchni 4 m²
- Stan: Do generalnego remontu
- Ogrzewanie: Gazowe
Mieszkanie jest przestronne, z możliwością podziału na dwa mniejsze lokale , co czyni je idealnym rozwiązaniem zarówno dla inwestorów, jak i osób prywatnych szukających świetnej okazji cenowej.
Dlaczego warto?
- Świetna lokalizacja – bliskość sklepów, komunikacji miejskiej i infrastruktury miejskiej.
- Możliwość podziału – potencjał na dwa mniejsze mieszkania.
- Opcja wydzielenia czwartego pokoju – zwiększa funkcjonalność i wartość nieruchomości.
- Ogrzewanie gazowe – nowoczesne i ekonomiczne rozwiązanie.
- Idealne dla inwestora – wysoki zwrot z inwestycji po remoncie.
Zainteresowanych zapraszam do kontaktu!
Wisto Nieruchomości – profesjonalizm i rzetelność.
To mieszkanie może być Twoją kolejną świetną inwestycją!
Sprzedaje: Wisto Nieruchomości – biuro godne polecenia!
Na sprzedaż wyjątkowe 4-pokojowe mieszkanie w samym centrum Bytomia. Lokal o powierzchni 80,75 m², wymagający generalnego remontu, co daje niepowtarzalną możliwość aranżacji według własnego gustu. I co dodatkowo zwiększa potencjał mieszkania.
Szczegóły nieruchomości:
- Lokalizacja: Centrum Bytomia
- Powierzchnia mieszkania: 80,75 m²
- Dodatkowo: Piwnica o powierzchni 4 m²
- Stan: Do generalnego remontu
- Ogrzewanie: Gazowe
Mieszkanie jest przestronne, z możliwością podziału na dwa mniejsze lokale , co czyni je idealnym rozwiązaniem zarówno dla inwestorów, jak i osób prywatnych szukających świetnej okazji cenowej.
Dlaczego warto?
- Świetna lokalizacja – bliskość sklepów, komunikacji miejskiej i infrastruktury miejskiej.
- Możliwość podziału – potencjał na dwa mniejsze mieszkania.
- Opcja wydzielenia czwartego pokoju – zwiększa funkcjonalność i wartość nieruchomości.
- Ogrzewanie gazowe – nowoczesne i ekonomiczne rozwiązanie.
- Idealne dla inwestora – wysoki zwrot z inwestycji po remoncie.
Zainteresowanych zapraszam do kontaktu!
Wisto Nieruchomości – profesjonalizm i rzetelność.
To mieszkanie może być Twoją kolejną świetną inwestycją!
| Informacje podstawowe | ||
|---|---|---|
| Rodzaj nieruchomości | Mieszkanie | |
| Rodzaj transakcji | Sprzedaż | |
| Rynek | Wtórny | |
| Województwo | śląskie | |
| Miejscowość | Bytom | |
| Prąd (przyłącze) | Tak | |
| Woda (przyłącze) | Tak | |
| Gaz (przyłącze) | Tak | |
| Kanalizacja | Tak | |
| Parking | Nie | |
| Rodzaj budynku | Blok mieszkalny | |
| Rok budowy | 1960 | |
| Informacje dodatkowe | ||
|---|---|---|
| Piętro | Parter | |
| Liczba pięter | 2 | |
| Liczba pokoi | 4 | |
| Stan obiektu | Do remontu | |
| Materiał | Cegła | |
| Technologia | Tradycyjna | |
| Ogrzewanie | Gazowe | |
| Dostępność | Natychmiast | |
| Balkon | Nie | |
| Loggia | Nie | |
| Taras | Tak | |
| Piwnica | Tak | |
| Otoczenie | ||
|---|---|---|
| Otoczenie | Osiedle bloków mieszkalnych | |
| Głośność | Cicho | |
| Bank | Tak | |
| Restauracja | Tak | |
| Bar / pub | Tak | |
| Szkoła podstawowa | Tak | |
| Liceum / Technikum | Tak | |
| Uczelnia | Tak | |
| Żłobek | Tak | |
| Przedszkole | Tak | |
| Basen | Tak | |
| Fitnes | Tak | |
| Pralnia | Tak | |
| Apteka | Tak | |
| Fryzjer | Tak | |
| Supermarket | Tak | |
| Sklep spożywczy | Tak | |
| Weterynarz | Tak | |
Kontakt:
Sławomir Szimpel
Tel.: 502 129 400
Nr ref.: O-309
Sławomir Szimpel
Tel.: 502 129 400
Nr ref.: O-309
