2 Pokoje umeblowane od zaraz
Mieszkanie na sprzedaż, cena 229900 PLN, 6050 PLN/m2, powierzchnia 38 m2Ruda Śląska, śląskie, Polska


















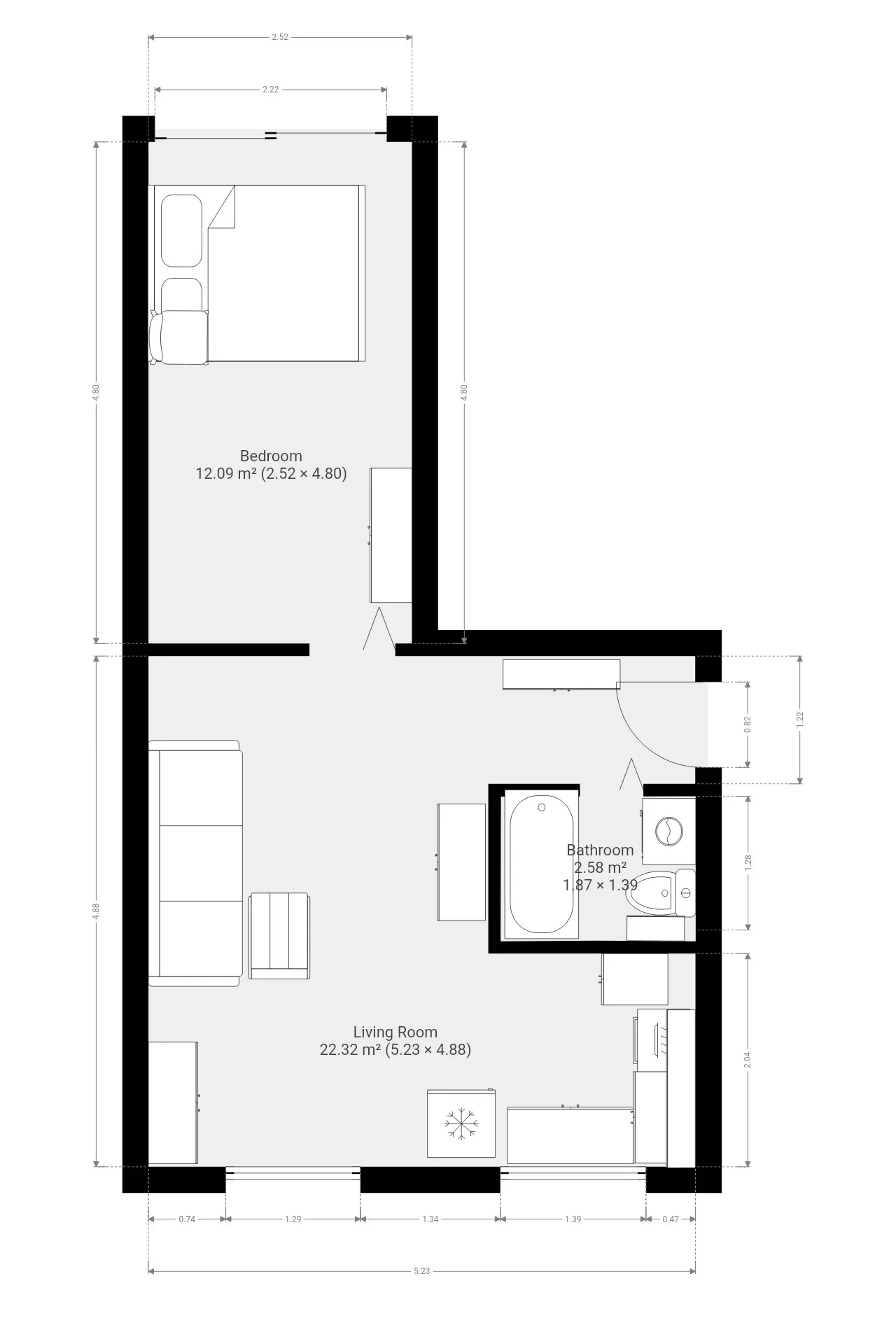
Na sprzedaż – 2-pokojowe mieszkanie w Rudzie Śląskiej – Godula
Biuro WISTO Nieruchomości prezentuje przytulne mieszkanie o powierzchni 38 m², położone na 4. piętrze w 4-piętrowym budynku. Lokal jest dwustronny, co zapewnia świetne doświetlenie wnętrz, a jednocześnie komfort, ciszę i poczucie bezpieczeństwa.
Układ mieszkania:
-przestronny salon z otwartą kuchnią
-sypialnia
-łazienka z toaletą
-przedpokój
Mieszkanie kilka lat temu przeszło remont generalny, obecnie wymaga jedynie odświeżenia. Lokal jest w pełni wyposażony i gotowy do wprowadzenia od zaraz.
Dodatkowe informacje:
-powierzchnia: 38 m²
-piętro: 4/4
-ogrzewanie: miejskie
-czynsz: ok. 400 zł
-układ: dwustronny
Lokalizacja – Ruda Śląska, dzielnica Godula
Okolica spokojna i dobrze skomunikowana – w pobliżu sklepy, przystanki komunikacji miejskiej, szkoły, punkty usługowe.
Biuro WISTO Nieruchomości prezentuje przytulne mieszkanie o powierzchni 38 m², położone na 4. piętrze w 4-piętrowym budynku. Lokal jest dwustronny, co zapewnia świetne doświetlenie wnętrz, a jednocześnie komfort, ciszę i poczucie bezpieczeństwa.
Układ mieszkania:
-przestronny salon z otwartą kuchnią
-sypialnia
-łazienka z toaletą
-przedpokój
Mieszkanie kilka lat temu przeszło remont generalny, obecnie wymaga jedynie odświeżenia. Lokal jest w pełni wyposażony i gotowy do wprowadzenia od zaraz.
Dodatkowe informacje:
-powierzchnia: 38 m²
-piętro: 4/4
-ogrzewanie: miejskie
-czynsz: ok. 400 zł
-układ: dwustronny
Lokalizacja – Ruda Śląska, dzielnica Godula
Okolica spokojna i dobrze skomunikowana – w pobliżu sklepy, przystanki komunikacji miejskiej, szkoły, punkty usługowe.
| Informacje podstawowe | ||
|---|---|---|
| Rodzaj nieruchomości | Mieszkanie | |
| Rodzaj transakcji | Sprzedaż | |
| Rynek | Wtórny | |
| Województwo | śląskie | |
| Miejscowość | Ruda Śląska | |
| Prąd (przyłącze) | Tak | |
| Woda (przyłącze) | Tak | |
| Gaz (przyłącze) | Tak | |
| Kanalizacja | Tak | |
| Warunki zabudowy | Tak | |
| Parking | Nie | |
| Rodzaj budynku | Blok mieszkalny | |
| Rok budowy | 1960 | |
| Informacje dodatkowe | ||
|---|---|---|
| Piętro | 4 | |
| Liczba pięter | 4 | |
| Liczba pokoi | 2 | |
| Stan obiektu | Do użytku | |
| Rodzaj kuchni | Aneks | |
| Materiał | Cegła | |
| Technologia | Tradycyjna | |
| Ogrzewanie | Miejskie | |
| Dostępność | Natychmiast | |
| Balkon | Nie | |
| Piwnica | Tak | |
| Otoczenie | ||
|---|---|---|
| Otoczenie | Osiedle bloków mieszkalnych | |
| Głośność | Cicho | |
| Park | Tak | |
| Bank | Tak | |
| Restauracja | Tak | |
| Bar / pub | Tak | |
| Szkoła podstawowa | Tak | |
| Liceum / Technikum | Tak | |
| Uczelnia | Tak | |
| Żłobek | Tak | |
| Przedszkole | Tak | |
| Basen | Tak | |
| Fitnes | Tak | |
| Pralnia | Tak | |
| Apteka | Tak | |
| Fryzjer | Tak | |
| Supermarket | Tak | |
| Sklep spożywczy | Tak | |
| Weterynarz | Tak | |
Kontakt:
Sławomir Szimpel
Tel.: 502 129 400
Nr ref.: O-415
Sławomir Szimpel
Tel.: 502 129 400
Nr ref.: O-415
